27 Arlington Street Belmont North
27 Arlington Street Belmont North
27 Arlington Street Belmont North
27 Arlington Street Belmont North
27 Arlington Street Belmont North
27 Arlington Street Belmont North
27 Arlington Street Belmont North
9 photos

27 Arlington Street Belmont North

Contact Agent

27 Arlington Street Belmont North

2 1

Contact Agent
Contact Agent

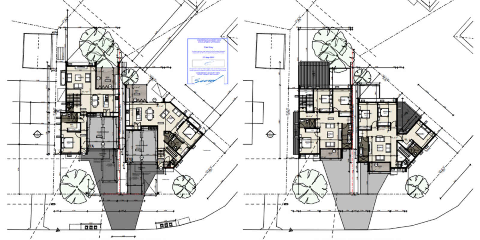
Development Site - Detached Dual Occupancy Townhouses - DA Approved - Ocean Views

Property Details

R&W Charlestown is proud to present this fabulous development site, with second story ocean views, located in the ever popular location of Belmont North.

There is currently an old miners cottage located onsite, in below average condition,
2 Bedrooms & 1 Bathroom.

The DA for this development is now approved, everything is ready to proceed, you can now immediately start to build the dual occupancy townhouses, both of which feature:

4 bedrooms, 2 Bathrooms and 2 car garages.

The design is modern, appealing and generous in living space, with multiple living areas, ensuite to the main and a modern contemporary fascade.

Once completed you should make a significant capital gain, we are offering an investor, builder, developer or anyone who is savvy a unique investment opportunity.

There is already a lot of interest in this site, contact our office for further information, detailed plans and drawings.

Available documents for download

Land area

620 sqm (approx)

Share on

27 Arlington Street Belmont North
27 Arlington Street Belmont North
×
27 Arlington Street Belmont North
27 Arlington Street Belmont North
27 Arlington Street Belmont North
27 Arlington Street Belmont North
27 Arlington Street Belmont North
27 Arlington Street Belmont North
27 Arlington Street Belmont North
27 Arlington Street Belmont North
27 Arlington Street Belmont North
FAQ

Do I need to be there for open homes or inspections?

Not at all. We’ll handle everything professionally, respecting your time and space while ensuring buyers feel welcome and informed.

How should I prepare my home for sale?

Presentation matters. From minor touch-ups to expert styling, we’ll guide you on how to showcase your home in its best light—inside and out.

What should I look for in a real estate agent?

Experience, communication, and local knowledge count. You want someone who listens, guides you with honesty, and knows how to get results—now and always.

What’s a property appraisal, and why does it matter?

A professional appraisal gives you a clear understanding of your home’s current market value—an essential first step in planning your sale with confidence.

When’s the right time to sell?

The ‘perfect’ time depends on your property, your goals, and the market. We’ll help you weigh the factors and decide what works best for you.

Will I need to pay Stamp Duty?

Stamp Duty usually applies to buyers, but rules can vary. We can connect you with trusted legal and financial advisors to make sure everything’s covered.

‘What’s the best way to market my property?’

The best marketing strategy is one that’s tailored—to your home, your audience, and the current market. It’s not about ticking boxes; it’s about standing out where it matters. That means combining strong digital reach with compelling visuals, authentic storytelling, and targeted strategy. If you’re thinking about selling Talk to us today.

DON’T MISS A MOMENT.